Caldera de calentamiento para combustible sólido.
El costo de una caldera de calefacción hecha por un método industrial (sin importar el tipo de combustible, excepto el eléctrico), comienza en 13 mil rublos. Estas son muestras de bajo consumo que pueden calentar una pequeña casa de campo. La mayoría de los propietarios no son adecuados. Además, no siempre es posible utilizar gas natural para calefacción. Es necesario considerar como combustible sólido alternativo, aceite residual, electricidad. Para muchas personas, el combustible sólido es más adecuado: madera, carbón, briquetas. Los artesanos prefieren hacer una caldera de calefacción con combustible sólido con sus propias manos.. Esto ahorra dinero y las manos tienen algo que ver.
Componentes principales

Las calderas de combustible sólido constan de los siguientes componentes:
- departamento de carga de combustible;
- coleccionista de oro;
- válvulas de mariposa;
- rejas
- tanque de almacenamiento de agua;
- intercambiador de calor;
- chimenea
Especies

Según el método de colocación del intercambiador de calor, las calderas de combustible sólido son:
- horizontal: el intercambiador de calor está ubicado en el plano horizontal;
- Vertical: el intercambiador de calor está instalado en la caldera.
Una característica de la ubicación horizontal del intercambiador de calor es su posición inclinada. Entre el punto superior y el punto inferior (salida de refrigerante en el sistema), la diferencia de nivel es de 1 cm. Las calderas con un intercambiador de calor vertical se utilizan principalmente para calentar.
En principio, cualquier caldera de combustible sólido puede usarse para cocinar. Para esto, es necesario proporcionar una superficie de cocción en su diseño.
Caja de herramientas

Para montar la caldera, necesitará herramientas y materiales.
Herramientas:
- máquina de soldadura de arco;
- amoladora angular ("amoladora") y ruedas de corte para cortar metal;
- fórceps
- taladro eléctrico con un conjunto de taladros;
- Nivel y ruleta.
Materiales de
- Ladrillo incombustible
- Arena tamizada.
- Arcilla
- Hoja de metal de 5–8 mm de espesor. Es mejor usar acero inoxidable, pero puedes usar acero.
- Rejillas de hierro fundido.
- Esquina de metal.
- Tuberías de acero para agua de sección rectangular y redonda.
- Puertas para el compartimiento de combustible, receptor de oro.
- Aleta de chimenea.
- Solo bypass o circulador.
Si la circulación forzada es básica y el sistema de calefacción gravitacional debe guardarse como reserva, se instala un bypass. Cuando trabaje solo con circulación forzada instale una bomba.
Fabricación y montaje de piezas.

Comience a trabajar en la instalación de la caldera con sus propias manos con el dibujo del esquema y los dibujos del conjunto. Según ellos los tamaños se aplican sobre láminas de metal. Al marcar, corte las partes delantera, trasera, laterales y la parte inferior de la caldera. Delante de las aberturas recortadas para las puertas de los recipientes de combustible y oro.
Si corta las aberturas con un cortador de gas, entonces, para que el acero no "salga", se perforan agujeros en las esquinas de la pieza de trabajo, luego se corta metal desde el centro hasta los bordes a lo largo de la marca.
Si usa la amoladora, los orificios en las esquinas del taladro no son necesarios. Simplemente corte a través del metal en el contorno deseado. También según el tamaño, se cortan todas las partes metálicas de la caldera.

La instalación del intercambiador de calor comienza con la realización de agujeros en tuberías diseñadas para racks. Tienen una sección transversal cuadrada de 40 a 60 cm. En tubos verticales, que se ubican en la parte delantera, se cortan 4 agujeros de 5 cm de diámetro con un cortador de gas, colocándolos uniformemente a lo largo de toda la pieza de trabajo.
En los pilares traseros se hacen orificios redondos de 4 y 5 cm. Desde la parte inferior del futuro intercambiador de calor, se hacen orificios para suministrar agua a la caldera (retorno), y desde la parte superior para suministrar agua al sistema de calefacción (suministro). Todas las aberturas deben ser lisas sin las afluencias, que se eliminan con la ayuda del "molinillo". ¿Soldar tuberías en un producto entero, manteniendo los ángulos de 90? Tanto vertical como horizontalmente, elaborando las aberturas finales de los tubos rectangulares (bastidores).
Las soldaduras del intercambiador de calor terminado se revisan para detectar fugas. Para este propósito, la línea de retorno se silencia temporalmente (para que el agua no fluya) y el flujo se llena con agua.

Caldera montada en el lugar donde está previsto instalarla, porque todos los detalles son muy pesados y moverla en la forma terminada es problemático. Primero se debe equipar una base refractaria. Está dispuesto de ladrillos refractarios. Para que la mampostería no se disperse, puede reforzarse con esquinas metálicas en los bordes y los ladrillos entre sí para cementar el mortero. La segunda variante de la cimentación es un “cojín” monolítico de hormigón.
Las dimensiones de la cimentación deben ser ligeramente más grandes que la base de la caldera. Se coloca un tocho de acero en la base, el fondo del contenedor de cenizas.
Las paredes del tanque en el que se instala el intercambiador de calor están dispuestas sobre ladrillos refractarios, un búnker de combustible y un receptor de cenizas. La distancia entre el intercambiador de calor y la pared es de 1 cm. Las barras de rejilla se instalan en el fondo del depósito de combustible. En la pared de ladrillo frontal hay aberturas para la puerta del receptáculo de combustible y la puerta del receptáculo de oro.

Las paredes exteriores de la caldera están cubiertas con metal, que está interconectado por esquinas dispuestas verticalmente. Las puertas están unidas a la carcasa de metal. Para eliminar los gases de monóxido de carbono montados en chimenea. Cómo instalar este nodo depende de la presencia o ausencia de la superficie de cocción.
Si la caldera se usará para cocinar, la chimenea se montará en un lado, de lo contrario, en la parte superior de la caldera.
A la salida de la caldera, la chimenea está equipada con una válvula de compuerta para regular el empuje. El material para la tubería puede ser diferente: ladrillo ignífugo, metal, asbesto. Lo principal es lograr el nivel de tracción deseado para organizar el proceso de grabación.
Para el funcionamiento seguro de una caldera de combustible sólido, puede instalar un tanque de expansión abierto, sensores de temperatura de agua y tracción, y un ventilador.
Para evitar el sobrecalentamiento del refrigerante y la explosión de la caldera, es necesario controlar constantemente el nivel de agua y la temperatura de combustión. Si solo utiliza la circulación forzada, al apagar la electricidad durante el funcionamiento de la caldera, el riesgo de explosión del intercambiador de calor aumenta considerablemente. Estar atentos
El video
En el material de video provisto, podrá familiarizarse visualmente con el diseño de la caldera de combustible sólido:
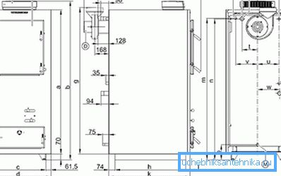
Dibujos
En los dibujos, puede considerar las características de diseño de una caldera de calefacción de combustible sólido:





